Vastgoed Valkenborgh
Martelarenlaan 28a
3500
Hasselt
E.info@vastgoedvalkenborgh.be
Toekomstgericht woonconcept waarin wonen en werken samenkomen in een eigentijdse, energiezuinige nieuwbouw op een uitzonderlijke locatie.
Nieuw
Maastrichtersteenweg 261, 3500 Hasselt
Ref: Maastrichtersteenweg 261
CONTACT
Jeroen Vandormael: jeroen@vastgoedvalkenborgh.be | 0498/05.76.72
Exclusieve mogelijkheid tot het realiseren van een ruime gezinswoning met geïntegreerde handelsruimte, op toplocatie net buiten de Grote Ring van Hasselt.
Aan de Maastrichtersteenweg 261 te Hasselt wordt een uniek nieuwbouwproject aangeboden met vergunbare plannen voor de oprichting van een zeer ruime gezinswoning met geïntegreerde handelsruimte.
Het ontwerp combineert wonen en werken op harmonieuze wijze, met oog voor hedendaags comfort, functionaliteit en architecturale verfijning.
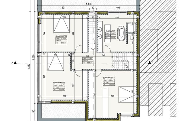
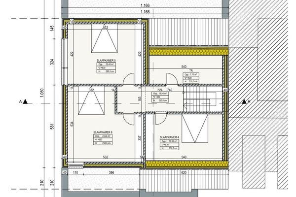
De plannen voorzien in een gezinswoning met een bewoonbare oppervlakte die toelaat tot vijf slaapkamers te realiseren, wat dit concept bijzonder geschikt maakt voor grotere gezinnen of vrije beroepers die een kantoorruimte wensen te combineren met hun privéwoonst.
De woning beschikt over een zuidgerichte tuin en is gelegen op een rustige, doch vlot bereikbare locatie, wat zorgt voor een aangenaam en evenwichtig woon-werkcomfort.
Het handelsgedeelte op het gelijkvloers omvat meerdere afzonderlijke burelen of kabinetten, een landschaftsbureau, wachtruimte, toilet en kitchenette — ideaal voor de uitoefening van een vrij beroep zoals een (tand)artsenpraktijk, kinesitherapie, architectenbureau, advocatenkantoor, toonzaal of consultatieruimte.
De bijgevoegde plannen zijn volledig vergunbaar, maar kunnen — indien gewenst — nog aangepast worden aan de persoonlijke behoeften of smaak van de koper, in nauwe samenwerking met architecte Jo Heyens (www.architectheyensjo.be).
De realisatie van het project kan eveneens, zonder enige verplichting, toevertrouwd worden aan Synaeve bouwprojecten (www.synaevebouwprojecten.be), die instaan voor een kwalitatieve uitvoering met persoonlijke begeleiding van ontwerp tot afwerking.
De ligging vormt een absolute troef: op een uitstekende zicht- en verbindingslocatie, vlakbij het stadscentrum, de Corda Campus, scholen en belangrijke invalswegen, terwijl de omgeving toch een rustig en residentieel karakter behoudt.
Een uitzonderlijke opportuniteit voor wie wonen en werken wil combineren op één adres, met de vrijheid om het project volledig volgens eigen wensen en stijl te ontwikkelen.
TROEVEN
- unieke combinatie van wonen en werken onder één dak
- vergunbare nieuwbouw met hedendaags architecturaal ontwerp
- mogelijkheid tot persoonlijke aanpassing in samenwerking met architecte Jo Heyens
- kwalitatieve realisatie mogelijk via synaeve bouwprojecten (zonder uitvoeringsverplichting)
- energiezuinig ontwerp volgens de laatste bouwnormen en technieken
- mogelijkheid tot plaatsing van warmtepomp, vloerverwarming en zonnepanelen
- ruime gezinswoning met potentieel tot vijf slaapkamers
- handelsgedeelte met afzonderlijke burelen, wachtruimte en kitchenette
- ideaal voor vrije beroepers (artsen, kinesisten, architecten, advocaten, ontwerpers, …)
- zuidgerichte tuin met aangename lichtinval
- kleinschalige en rustige ligging net buiten de grote ring van hasselt
- uitstekende bereikbaarheid en zichtlocatie aan belangrijke invalsweg
- vlotte verbinding met stadscentrum, corda campus, scholen en winkels
- aangenaam wooncomfort en functionele indeling
- project volledig te realiseren naar eigen stijl, behoeften en afwerkingsgraad
BEKNOPT
Bewoonbare opp: 461 m²
Plannen: te downloaden onder rubriek ‘downloads’ op www.vastgoedvalkenborgh.be
Vraagprijs: Op aanvraag.
Meer info: www.vastgoedvalkenborgh.be of via 0498/05.76.72
Jeroen Vandormael: jeroen@vastgoedvalkenborgh.be | 0498/05.76.72
Exclusieve mogelijkheid tot het realiseren van een ruime gezinswoning met geïntegreerde handelsruimte, op toplocatie net buiten de Grote Ring van Hasselt.
Aan de Maastrichtersteenweg 261 te Hasselt wordt een uniek nieuwbouwproject aangeboden met vergunbare plannen voor de oprichting van een zeer ruime gezinswoning met geïntegreerde handelsruimte.
Het ontwerp combineert wonen en werken op harmonieuze wijze, met oog voor hedendaags comfort, functionaliteit en architecturale verfijning.
De plannen voorzien in een gezinswoning met een bewoonbare oppervlakte die toelaat tot vijf slaapkamers te realiseren, wat dit concept bijzonder geschikt maakt voor grotere gezinnen of vrije beroepers die een kantoorruimte wensen te combineren met hun privéwoonst.
De woning beschikt over een zuidgerichte tuin en is gelegen op een rustige, doch vlot bereikbare locatie, wat zorgt voor een aangenaam en evenwichtig woon-werkcomfort.
Het handelsgedeelte op het gelijkvloers omvat meerdere afzonderlijke burelen of kabinetten, een landschaftsbureau, wachtruimte, toilet en kitchenette — ideaal voor de uitoefening van een vrij beroep zoals een (tand)artsenpraktijk, kinesitherapie, architectenbureau, advocatenkantoor, toonzaal of consultatieruimte.
De bijgevoegde plannen zijn volledig vergunbaar, maar kunnen — indien gewenst — nog aangepast worden aan de persoonlijke behoeften of smaak van de koper, in nauwe samenwerking met architecte Jo Heyens (www.architectheyensjo.be).
De realisatie van het project kan eveneens, zonder enige verplichting, toevertrouwd worden aan Synaeve bouwprojecten (www.synaevebouwprojecten.be), die instaan voor een kwalitatieve uitvoering met persoonlijke begeleiding van ontwerp tot afwerking.
De ligging vormt een absolute troef: op een uitstekende zicht- en verbindingslocatie, vlakbij het stadscentrum, de Corda Campus, scholen en belangrijke invalswegen, terwijl de omgeving toch een rustig en residentieel karakter behoudt.
Een uitzonderlijke opportuniteit voor wie wonen en werken wil combineren op één adres, met de vrijheid om het project volledig volgens eigen wensen en stijl te ontwikkelen.
TROEVEN
- unieke combinatie van wonen en werken onder één dak
- vergunbare nieuwbouw met hedendaags architecturaal ontwerp
- mogelijkheid tot persoonlijke aanpassing in samenwerking met architecte Jo Heyens
- kwalitatieve realisatie mogelijk via synaeve bouwprojecten (zonder uitvoeringsverplichting)
- energiezuinig ontwerp volgens de laatste bouwnormen en technieken
- mogelijkheid tot plaatsing van warmtepomp, vloerverwarming en zonnepanelen
- ruime gezinswoning met potentieel tot vijf slaapkamers
- handelsgedeelte met afzonderlijke burelen, wachtruimte en kitchenette
- ideaal voor vrije beroepers (artsen, kinesisten, architecten, advocaten, ontwerpers, …)
- zuidgerichte tuin met aangename lichtinval
- kleinschalige en rustige ligging net buiten de grote ring van hasselt
- uitstekende bereikbaarheid en zichtlocatie aan belangrijke invalsweg
- vlotte verbinding met stadscentrum, corda campus, scholen en winkels
- aangenaam wooncomfort en functionele indeling
- project volledig te realiseren naar eigen stijl, behoeften en afwerkingsgraad
BEKNOPT
Bewoonbare opp: 461 m²
Plannen: te downloaden onder rubriek ‘downloads’ op www.vastgoedvalkenborgh.be
Vraagprijs: Op aanvraag.
Meer info: www.vastgoedvalkenborgh.be of via 0498/05.76.72
| Naam |
Jeroen Vandormael
|
| GSM |
| KI (niet geïndexeerd) |
€ 431
|
Gelijkvloers
| 4x Kantoor |
|
| 3x Toilet |
|
| 2x Inkomhal |
|
| 2x Keuken |
|
| Berging |
|
| Wasplaats |
|
| Woonkamer |
|
| Eetkamer |
|
| Nachthal |
|
| Tuin |
|
| 4x Parkeerplaats |
|
| Handelsruimte |
|
| Terras |
|
Verdieping 1
| Kantoor |
|
| 2x Slaapkamer |
|
| Badkamer |
|
Verdieping 2
| Nachthal |
|
| 3x Slaapkamer |
|
| Technische ruimte |
|
| Zolder |
|
| Totale opp. grond |
1.279 m²
|
| Bewoonbare opp. |
461 m²
|
| Alarm |
Ja
|
| Distributie |
Ja
|
| Elektriciteit |
Ja
|
| Fiber (glasvezel) |
Ja
|
| Internet |
Ja
|
| Regenwater |
Ja
|
| Riolering |
Ja
|
| Stadswater |
Ja
|
| Telefoon |
Ja
|
| Warmtepomp |
Ja
|
| Zonneboiler |
Ja
|
| Zonnepanelen |
Ja
|
| Beglazing |
Driedubbele
|
| Keuken |
Geïnstalleerd
|
| Raamwerk |
Aluminium
|
| Bouwjaar |
2026
|
| Bebouwing |
Halfopen
|
| Algemene staat |
Nieuwe staat
|
| Oriëntatie tuin |
Zuid
|
| Elektriciteitscertificaat |
Ja, Conform
|
| Lift |
Neen
|
| Bouwvergunning |
In aanvraag
|
| Verkavelingsvergunning |
Neen
|
| Voorkooprecht |
Neen
|
| Beschermd erfgoed |
Neen
|
| Renovatieplicht |
Niet ingegeven
|
Laten we de kosten berekenen
false
1.5%
20 jaar
EUR/maand

